Objektbeschreibung:
Dieses charmante mallorquinische Bauernhaus in Son Negre, Manacor, wurde aus Mares-Stein erbaut und bietet eine bebaute Fläche von 135 m2. Das Haus steht auf einem fast 14.000 m2 großen Grundstück, das an ein weiteres Grundstück von über 17.000 m2 grenzt. Beide Grundstücke werden zusammen verkauft, was eine Gesamtnutzfläche von über 30.000 m2 bietet.
Ein genehmigtes Projekt für einen 35 m2 großen Pool kann hinter dem Haus realisiert werden. Das ursprüngliche Gebäude aus dem Jahr 1946 hat bereits ein neues Dach, dennoch wird empfohlen, die alten Mauern zu erneuern, um die rustikale Optik zu bewahren. Die Baugenehmigung liegt vor, und der Bau kann nach Erhalt der letzten Dokumente voraussichtlich im April beginnen.
Ein genehmigtes Projekt für einen 35 m2 großen Pool kann hinter dem Haus realisiert werden. Das ursprüngliche Gebäude aus dem Jahr 1946 hat bereits ein neues Dach, dennoch wird empfohlen, die alten Mauern zu erneuern, um die rustikale Optik zu bewahren. Die Baugenehmigung liegt vor, und der Bau kann nach Erhalt der letzten Dokumente voraussichtlich im April beginnen.
Lage:
Son Negre ist ein kleines, charmantes Dorf in der Gemeinde Manacor auf Mallorca. Es liegt an der Landstraße Ma-4021, die Manacor mit Son Carrió verbindet. Der Ort besticht durch seine historische Kirche aus dem Jahr 1878 und eine alte Schule aus dem Jahr 1928, die nicht mehr genutzt wird.
Das Dorf hat 21 verstreute Häuser, von denen einige im Besitz der Kirche sind. Die ruhige Umgebung und die landschaftlich reizvolle Lage bieten ideale Voraussetzungen für ein idyllisches Landleben, fernab von städtischem Trubel und mit viel Freiraum für individuelle Gestaltungsmöglichkeiten.
Das Dorf hat 21 verstreute Häuser, von denen einige im Besitz der Kirche sind. Die ruhige Umgebung und die landschaftlich reizvolle Lage bieten ideale Voraussetzungen für ein idyllisches Landleben, fernab von städtischem Trubel und mit viel Freiraum für individuelle Gestaltungsmöglichkeiten.
Weitere Infos:
Kosten: nicht angegeben, Strom: nicht erwähnt, Energie: keine Details, Heizung: nicht erwähnt, Müll: keine Informationen
Ausstattung:
- ✓ Mallorquinisches Bauernhaus
- ✓ Mares-Stein
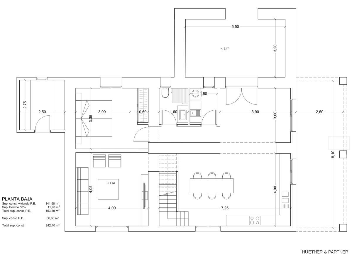
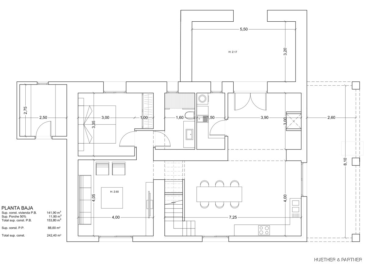
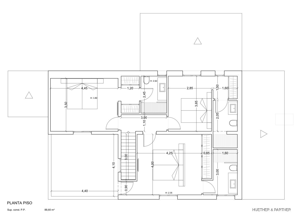
- ✓ 135 m2 bebaute Fläche
- ✓ Fast 14.000 m2 Grundstück
- ✓ Angrenzendes 17.000 m2 Grundstück
- ✓ über 30.000 m2 Gesamtfläche
- ✓ Genehmigtes Bauprojekt
- ✓ Neuer Pool
- ✓ 35 m2 Pool
- ✓ Baujahr 1946
- ✓ Neues Dach
- ✓ Rustikale Optik
- ✓ Baugenehmigung vorhanden
- ✓ Bauvoraussicht April
- ✓ Son Negre
- ✓ Manacor
- ✓ Mallorca
- ✓ Ruhige Lage
- ✓ Historische Kirche